Empreendimento comercial e residencial localizado na zona sul de São Paulo. Sua proximidade com o aeroporto de Congonhas e com vias importantes da cidade, como a Marginal Pinheiros, Avenida Engenheiro Luís Carlos Berrini e a Avenida 23 de Maio são um grande diferencial, tronando o bairro uma referência de luxo e alto-padrão.
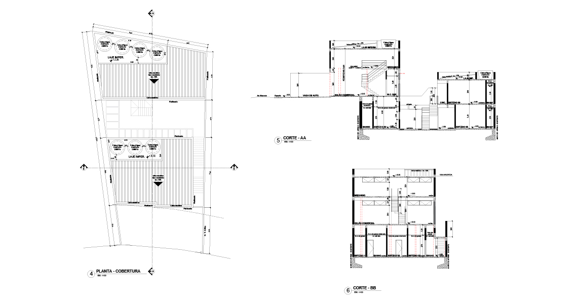
O projeto conta com 408,70m² de área construída, sendo divididos em área comercial e 11 studios. Vasto estacionamento para moradores e clientes.
11
studios
408m²
área construida




